قسم العمليات والجراحة:
يهتم كثيرا في تصميم قسم العمليات بالمستشفى وذلك لكونه
عنصر تعمل باقي الأقسام في المستشفى على انجاح العمل بداخله. وقسم العمليات يحتاج
إلى درجة كبيرة من تنظيم وتحديد الحركة بداخله للمحافظة على نظام التعقيم، لذا يجب
تصميمها وتجهيزها لتقابل الإجراءات الخاصة للمحافظة على أعلى درجة من التعقيم داخل
صالة لعمليات.
الاعتبارات التصميمية لقسم العمليات:
1- التوجيه المناسب له بأن يكون بعيدا عن نشاط الخدمة
ولا يكون ممر للعناصر الأخرى فالمستشفى وأن تكون الحركة داخله محدودة.
2- يكون الدخول إلية قريب من مدخل المصابين بالحوادث.
3- أن يكون سهل الإتصال بمركز التعقيم وقسم الأشعة.
4- التوجية بالنسة للجهات الأصلية في حالة استخدام إضاءة
طبيعية، حيث توجه صالة العمليات نحو الشمال.
5- يكون مجاورا لجناح المصاعد ووحدة التمريض.
6- يجب أن تكون جميع السطوح والمواد المستعملة في القسم
سهلة التنظيف.
7- يجب أن تكون محكمة الإغلاق وأن تكون الأرضية ثابتة
ومعزولة كهربائيا.
8- يجب أن يكون موقعه مناسب بالنسبة للمستشفى.
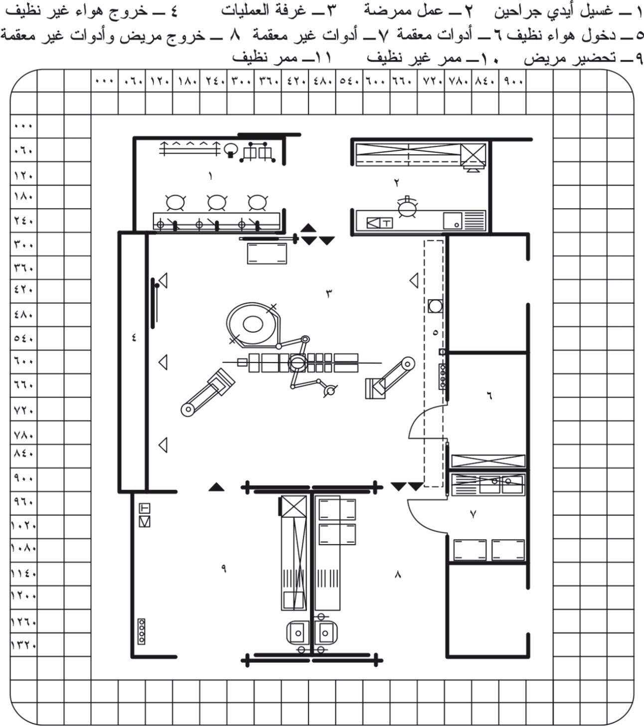
مكونات قسم العمليات:
يقسم قسم العمليات إلى مناطق تختلف فيها درجات التعقيم
والنظافة حسب طبيعة العمل الذي يجرى فيها...وهي:
1- منطقة معقمة: تشمل حيز صالة العمليات وحجرة التعقيم
الجزئي والغسيل وحجرة التخدير وحجرة غسيل الأيدي، وتتسم هذه المنطقة بالتعقيم
التام
2- خط التعقيم: وهي المنطقة التي تشمل حجرات الخلع
والراحة للفريق الجراحي وحيز الانعاش ومخازن الامدادات المعقمة، وتعتبر هذه
المنطقة خط التعقيم الفاصل بين المنطقة المعقمة ومنطقة النظافة العامة.
3- منطقة النظافة العامة: وتشمل مدخل قسم العمليات
والحجرات الإدارية ومحطة الممرضات وحيز انظارالمرضى.
وتنقسم الحركة في قسم العمليات إلى ثلاث أقسام...وهي:
-حركة المرضى.
-حركة الأطباء والممرضين.
-حركة التموين والتزويد بالمواد اللازمة والأجهزة وصرف
المستهلك.
منطقة العمليات وتشمل:
1- صالة العمليات:
ولها عدة أشكال...مستطيل ، مربع، أو بيضاوي والشكل
التالي يبين ذلك
وتتراوح مساحتها مابين 33-36م2 ، ويرعى في تصميمها أن
تكون أماكن التقاء الزوايا دائرية لتلافي تواجد البكتيريا ولسهولة التنظيف
والتعقيم.
أما ارتفاع الصالة فيتراوح مابين 3.2 – 3.6 م2 وذلك
لتركيب وحدة الإضاءة المركزية الخاصة بمنضدة العمليات.
2- حجرة التخدير:
ويتم فيها اجراء الفحوصات اللازمة للمريض قبل العملية
ومن ثم تخدير المريض ،وتفتح هذه الغرفة على صالة العمليات مباشرة ، ولا تستعمل هذه
الغرفة لخروج المريض بعد العملية حيث يجب أن يتوفر مخرج خاص.
مساحة مكان التخدير 4.2 * 4.2 م2 ، أما مكان الفحص
فمساحته 3 * 2.1 م2
3- حجرتي التعقيم والغسيل:
تشغل غرفة التعقيم مساحة تتراوح مابين (4.2 * 5.2)م2 ،و
(6.6 * 4.2)م2 ،بينما تشغل غرفة الغسيل مساحة تتراوح مابين (5.2 * 3.00)م2 و (6.6 * 3.00)م2 ، ويتم
فيها العناية بنظافة الآلات المسعملة في صالة العمليات ومن ثم تنتقل إلى غرفة
التعقيم التي يتم فيها تعقيم هذه الأدوات ومن ثم نقلها إلى غرفة العمليات.
يجب أن يكون الدخول لغرفة الغسيل وغرفة العمليات من موزع
خاص بهما ويكون معقم ، كما يراعى في التصميم أن تكون غرفتي التعقيم والغسيل ملاصقة
لصالة العمليات.
4- حجرة التطهير:
تكون هذه الغرفة ملاصقة لغرفة العمليات وتفتح عليها
مباشرة، وتكون بشكل مستطيل أو مربع لا يقل ضلعه عن 3.5م ، ويتم فيها غسيل أيدي
الجراح بالماء والصابون والكحول، وتحتوي هذه الغرفة على مغاسل بالإضافة إلى مخزن
للملابس والقفازات.
يمكن أن تشترك غرفتي عمليات بغرفة تطهير واحدة.
5- حجرة الإنعاش:
تقع غرفة الإنعاش قرب صالة العمليات وحجرة التخدير،
وتكون بعيدة عن طريق التوزيع الرئيسي لصالة العمليات، ويفضل أن تكون قريبة من مدخل
قسم العمليات الموصل إلى عنابر العلاج الجراحي، ويجب ألا تقل المسافة بين كل
سريرين عن 1.8م بحيث تكون المساحة المخصصة لكل سرير في غرفة الانعاش 10م.
وتفصل غرفة الإنعاش مابين صالة العمليات وعنابر النوم،
يتم فيها إفاقة المريض من التخدير بعد العملية، ويفضل أن يكون كل سرير في غرفة
انعاش خاصة محاطة بالزجاج مع إمكانية وجود أكثر من سرير في غرفة الانعاش.
6- حجرات الخلع والراحة للفريق الجراحي:
وتستخدم كمكان لراحة الفريق الجراحي وتبديل ملابسهم،
وتعبر فاصل مابين منطقة النظافة العامة ومنطقة التعقيم، ويجب أن تبتعد عن خط سير
المريض.
وتحتوي هذه الغرف على أدشاش ودورا مياة ومخزن للملابس،
وتبلغ مساحة غرفة الراحة للأطباء 12م2 ، وللممرضات 8م2.
ملحقات لقسم العمليات:
1- مخزن للآلات الجراحية والأجهزه المستعملة بعمليات
الجراحة.
2- مطبخ صغير لخدمة الأطباء والجراحين.
3- حجرة الامداد بالمعقمات وخزن للبيضات ويفضل أن تقع في
مكان متوسط من مجموعة صالات العمليات.
4- حجرات طبيعية خاصة: كحجرة الجبس أو غرف خاصة بجراحة
العظام.
5- مكاتب للجراحين ورئيس قسم العمليات.
6- فراغات لانتظار النقالات المتحركة.
7- حجرة تخزين غازات التخدير.
مخطط يوضح غرفة عمليات بسيطة بملحقاتها
غرفة عمليات مع كافة المعدات الطبية .
المقال من إعداد المهندس المعماري: إحسان رابعة
ـــــــــــــــــــــــــــــــــــــــــــــــــــ
تابع أيضا على قناة العمارة والفن على اليوتيوب :
![]() |
| عروض السوبر في علي اكسبريس - حصل أفضل المنتجات بأقل الأسعار |




تعليقات